47 Sunset Ln unit a, Tenafly, 07670
Toggle Navigation
Images
Videos
Floor Plans
3D Tour
Map
47 Sunset Ln unit a
Tenafly, 07670
Scroll to Content
Images
Slideshow
Photo Grid
Hide
Previous
Next
Show more
Videos
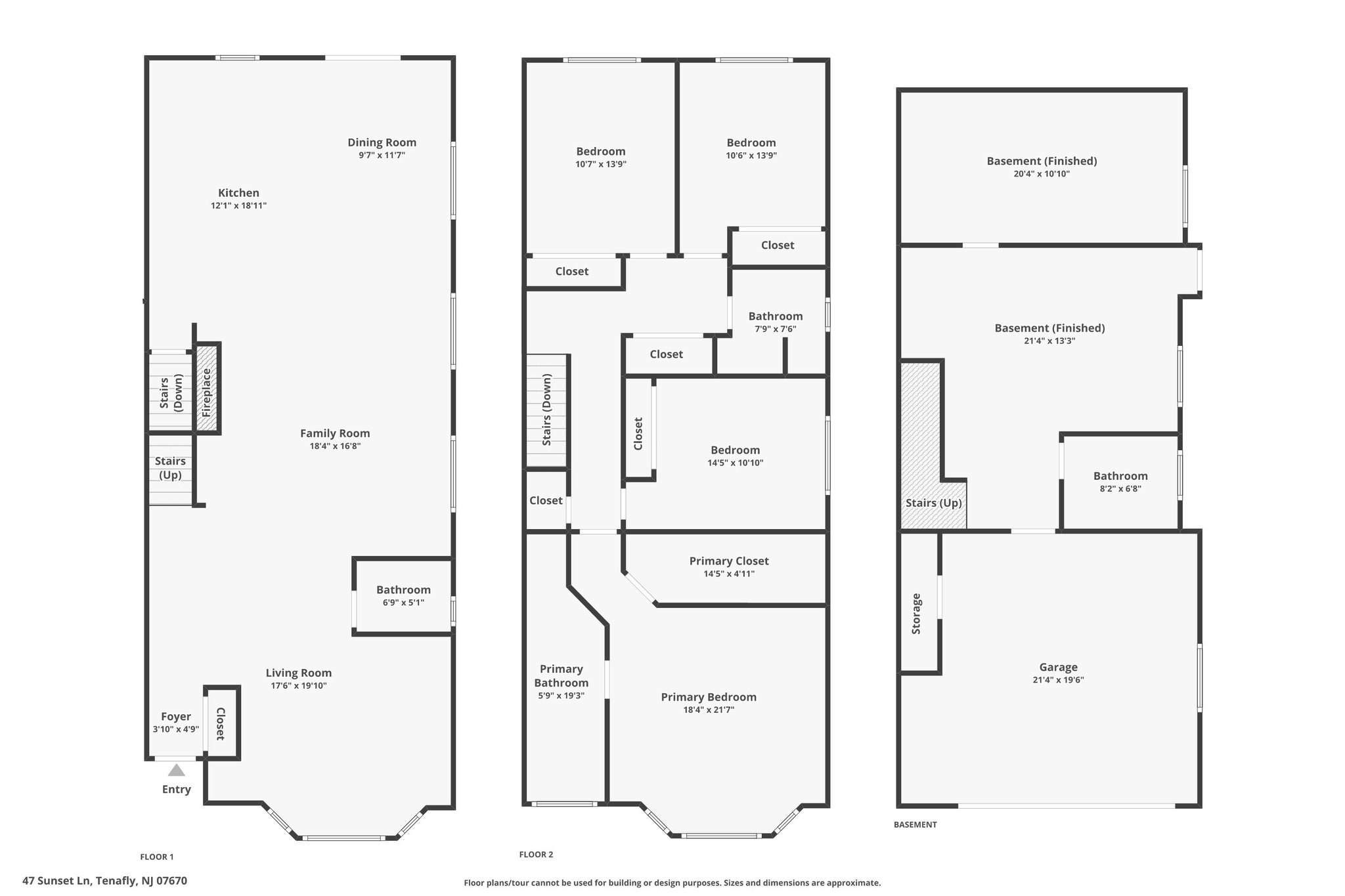
Floor Plans
Slideshow
Photo Grid
Hide
Previous
Next
3D Tour